Willkommen zu Ihrer nächsten Kapitalanlage im Herzen der lebendigen Erkelenzer Innenstadt! Diese Immobilie befindet sich direkt in der belebten Fußgängerzone und besticht durch eine erstklassige Lage, die Ihnen eine vielversprechende Investitionsmöglichkeit bietet.
Das Objekt umfasst ein vierstöckiges Wohn- und Geschäftshaus, das sich mit zwei gut positionierten Gewerbeeinheiten im Erdgeschoss präsentiert. Darüber hinaus befinden sich drei komfortable Wohnungen in den oberen Etagen, die durch ihre gute Vermietbarkeit überzeugen. Komplettiert wird dieses attraktive Angebot durch ein eigenständiges Wohnhaus im hinteren Bereich des Grundstücks, das über einen separaten Zugang von einer Parallelstraße erreichbar ist.
Ein besonderes Highlight dieser Immobilie: Sämtliche Einheiten sind bereits vermietet und sichern Ihnen eine jährliche Netto-Kaltmiete von ca. 85.000 €. Nutzen Sie diese Gelegenheit für eine stabile und rentable Investition in eine zentral gelegene Immobilie, die sowohl durch ihre Lage als auch durch ihr Vermietungspotential besticht.
Kategorie
- Objekttyp
- Wohn- und Geschäftshaus
- Nutzungsart
- Kapitalanlage
Flächen
- Anzahl Wohneinheiten
- 4
- Grundstücksgröße
- ca. 737 m²
Ausstattung
- Bauweise
- Massiv
- Fenster
- Diverse Fensterarten
- Keller
- Teilkeller
Modernisierungen
- Baujahr Heizung
- 2024
- Letzte Modernisierung
- 2024
Preise
- Jahresmiete (Ist)
- 85.020,00 €
- Jahresmiete (Soll)
- 85.020,00 €
- Kaufpreis
- 1.275.000,00 €
- Käufercourtage
- 3,57% inkl. MwSt.
- x fache (Ist)
- 15
- x fache (Soll)
- 15
Geografische Angaben
- PLZ
- 41812
- Ort
- Erkelenz
Technische Angaben
- ImmoNr
- 156
Videos
Beschreibung
Ausstattung
Dieses vielseitige Objekt vereint Gewerbe- und Wohnflächen in einer äußerst attraktiven Lage. Die Gewerbeeinheiten bieten eine kompakte Friseursalon-Fläche von ca. 67 m² sowie eine großzügige Metzgerei mit einer Fläche von etwa 274 m², die durch ihre effiziente Raumaufteilung mit Verkaufs-, Lager-, Kühl- und Arbeitsbereichen überzeugt. Eine rückwärtige Zufahrt ermöglicht einen unkomplizierten Zugang für Lieferfahrzeuge.
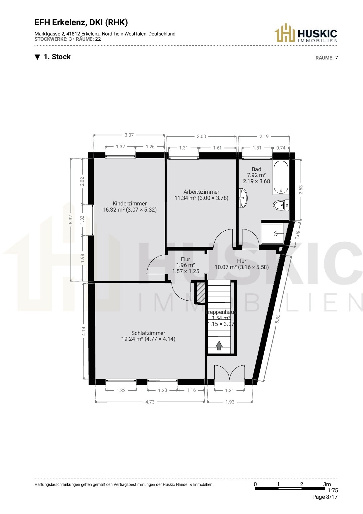
Über den Gewerbeflächen befinden sich drei gut proportionierte Wohneinheiten: Zwei großzügige Wohnungen im ersten und zweiten Obergeschoss mit jeweils 92 m² und eine charmante Wohnung im dritten Obergeschoss mit 61 m². Weitere praktische Lagermöglichkeiten bietet der vorhandene Keller.
Das separate Wohnhaus, erbaut im Jahr 1964, ist ein weiteres Highlight dieses Angebots. Es beeindruckt mit einer modernen Gestaltung auf zwei Etagen und einer Wohnfläche von ca. 156 m². Eine eigene Garage sowie der Zugang über eine ruhige Parallelstraße verleihen dem Wohnhaus zusätzlichen Komfort. Zudem ist es vollständig unterkellert und bietet somit reichlich Stauraum.
Für ein angenehmes Wohnklima sind das Wohnhaus sowie zwei der drei Wohnungen und eine der gewerblichen Einheiten mit einer modernen Gasheizung ausgestattet, die im Jahr 2024 installiert wurde. In den restlichen Einheiten wurde die Heizungsanlage zuletzt 2016 erneuert. Dieses Objekt bietet eine ideale Mischung aus gewerblicher und privater Nutzung und stellt eine äußerst attraktive Investitionsmöglichkeit dar.
Über den Gewerbeflächen befinden sich drei gut proportionierte Wohneinheiten: Zwei großzügige Wohnungen im ersten und zweiten Obergeschoss mit jeweils 92 m² und eine charmante Wohnung im dritten Obergeschoss mit 61 m². Weitere praktische Lagermöglichkeiten bietet der vorhandene Keller.
Das separate Wohnhaus, erbaut im Jahr 1964, ist ein weiteres Highlight dieses Angebots. Es beeindruckt mit einer modernen Gestaltung auf zwei Etagen und einer Wohnfläche von ca. 156 m². Eine eigene Garage sowie der Zugang über eine ruhige Parallelstraße verleihen dem Wohnhaus zusätzlichen Komfort. Zudem ist es vollständig unterkellert und bietet somit reichlich Stauraum.
Für ein angenehmes Wohnklima sind das Wohnhaus sowie zwei der drei Wohnungen und eine der gewerblichen Einheiten mit einer modernen Gasheizung ausgestattet, die im Jahr 2024 installiert wurde. In den restlichen Einheiten wurde die Heizungsanlage zuletzt 2016 erneuert. Dieses Objekt bietet eine ideale Mischung aus gewerblicher und privater Nutzung und stellt eine äußerst attraktive Investitionsmöglichkeit dar.
Lage
Das Wohn- und Geschäftshaus befindet sich im Herzen der pulsierenden Erkelenzer Innenstadt, eingebettet in der lebhaften Fußgängerzone.
Erkelenz, die größte Stadt im Kreis Heinsberg, beherbergt etwa 20.000 Einwohner und erstreckt sich zusammen mit den umliegenden Ortschaften auf eine Gesamteinwohnerzahl von rund 45.000. Aufgrund ihrer exzellenten Verkehrsanbindungen an die Autobahn A46 sowie der Nähe zum Autobahnkreuz Wanlo (A46/A61) lassen sich die umliegenden Städte wie Mönchengladbach in etwa 15 km und Düsseldorf in ca. 40 km bequem erreichen. Auch Aachen ist über die Bundesstraße B57 problemlos erreichbar. Ebenso punktet Erkelenz mit einem praktischen Bahnanschluss, der direkte Verbindungen nach Aachen sowie Mönchengladbach und Düsseldorf garantiert.
Bereits seit über einem Jahrtausend kann Erkelenz auf eine bewegte Geschichte und gelebte Tradition zurückblicken. Seit dem Jahr 2006 wird jedoch der östliche Teil des Stadtgebietes durch den Braunkohletagebau Garzweiler II schrittweise umstrukturiert. Trotz dieser Veränderungen bietet Erkelenz aufgrund seiner beachtlichen Größe eine hervorragende Infrastruktur. Von facettenreichem Einzelhandel bis hin zu groß angelegten Versorgungsunternehmen finden Bewohner und Besucher alles, was das Herz begehrt. Mehrere Gewerbegebiete offerieren Produktionskapazitäten und schaffen attraktive Arbeitsplätze.
Freizeitmöglichkeiten sind in Hülle und Fülle vorhanden und reichen von Hallen- und Freibädern über verschiedene Sporthallen bis hin zu einer Vielzahl von Sportplätzen. Besondere Anerkennung genießt Erkelenz schon seit Jahrzehnten als „Schulstadt“, was auf das exzellente Bildungsangebot und die vorbildhaften Bildungseinrichtungen hindeutet. Die Innenstadt mit dem Marktplatz, der das historische „Alte Rathaus“ umgibt, gilt weit über die Stadtgrenzen hinaus als geschätzter Treffpunkt für geselliges Beisammensein bei Bier, Kaffee und Kuchen.
Erkelenz, die größte Stadt im Kreis Heinsberg, beherbergt etwa 20.000 Einwohner und erstreckt sich zusammen mit den umliegenden Ortschaften auf eine Gesamteinwohnerzahl von rund 45.000. Aufgrund ihrer exzellenten Verkehrsanbindungen an die Autobahn A46 sowie der Nähe zum Autobahnkreuz Wanlo (A46/A61) lassen sich die umliegenden Städte wie Mönchengladbach in etwa 15 km und Düsseldorf in ca. 40 km bequem erreichen. Auch Aachen ist über die Bundesstraße B57 problemlos erreichbar. Ebenso punktet Erkelenz mit einem praktischen Bahnanschluss, der direkte Verbindungen nach Aachen sowie Mönchengladbach und Düsseldorf garantiert.
Bereits seit über einem Jahrtausend kann Erkelenz auf eine bewegte Geschichte und gelebte Tradition zurückblicken. Seit dem Jahr 2006 wird jedoch der östliche Teil des Stadtgebietes durch den Braunkohletagebau Garzweiler II schrittweise umstrukturiert. Trotz dieser Veränderungen bietet Erkelenz aufgrund seiner beachtlichen Größe eine hervorragende Infrastruktur. Von facettenreichem Einzelhandel bis hin zu groß angelegten Versorgungsunternehmen finden Bewohner und Besucher alles, was das Herz begehrt. Mehrere Gewerbegebiete offerieren Produktionskapazitäten und schaffen attraktive Arbeitsplätze.
Freizeitmöglichkeiten sind in Hülle und Fülle vorhanden und reichen von Hallen- und Freibädern über verschiedene Sporthallen bis hin zu einer Vielzahl von Sportplätzen. Besondere Anerkennung genießt Erkelenz schon seit Jahrzehnten als „Schulstadt“, was auf das exzellente Bildungsangebot und die vorbildhaften Bildungseinrichtungen hindeutet. Die Innenstadt mit dem Marktplatz, der das historische „Alte Rathaus“ umgibt, gilt weit über die Stadtgrenzen hinaus als geschätzter Treffpunkt für geselliges Beisammensein bei Bier, Kaffee und Kuchen.
Energieausweis-Art
- Baujahr Gebäude ca.
- 1956
- Baujahr lt. Energieausweis
- 1956
- Endenergiebedarf
- 206,1 kWh/(m²a)
- Energieausweis-Art
- Bedarfsausweis
- Energieausweis gültig bis
- 07.03.2035
- Energieeffizienzklasse
- G
- Energieausweis vom
- 03.03.2025
- wesentlicher Energieträger
- Gas
- Warmwasser enthalten
- Nein
- CO2-Ausstoß
- 50,2
Ihr Ansprechpartner
Herr Michael Fensky
S-Immobilien GmbH Heinsberg
- Tel.:
- 02431 94400110
- E-Mail:
- anfragen@kskimmo.net
Atelierstraße 5
41812 Erkelenz